Хайтек 322м №7

Цена строительства от 18 000 000 ₽* * Стоимость не является окончательной
Заявка на консультацию
  • Общая площадь 322 м2
  • Материал стен Каркас
  • Количество этажей 2
  • Подвал Нет
  • Мансарда без мансарды
  • Гараж Да
  • Терраса Да
  • Проживание Круглогодичное
  • Количество комнат 5
  • Количество спален 4
  • Количество санузлов 2
  • Вид проекта дом
  • Застройщик NORTH HOUSE
  • Архитектурный стиль Хай-тек
  • Отделка фасада Обшивка деревом
  • Крыша Плоская
  • Можно купить домокомплект Нет
  • Модульный тип строения Нет
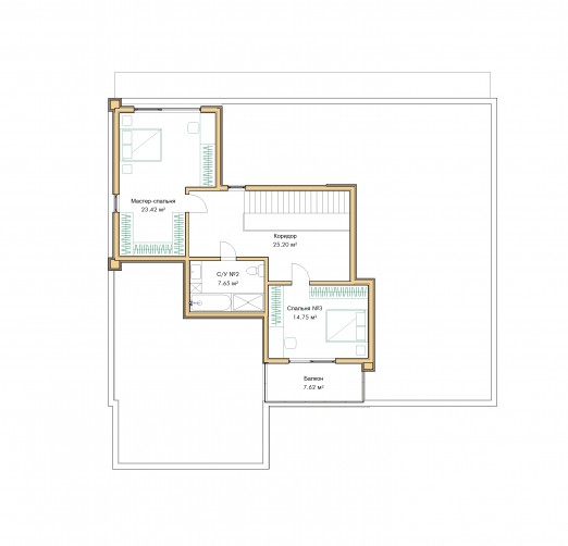
Планировки
Описание проекта

Современный дом в стиле Хайтек площадью 322м2 с гаражом! Дом сдаётся максимально готовый под финишные работы. Вам останется сделать ремонт на свой вкус.

Каркасная Северо-Американская технология позволяет достичь максимальной теплоэффективности, что позволит сэкономить на энергоресурсах и создать уютную и комфортную атмосферу в доме.

Общая площадь дома 322м2

Тёплый контур 215,85м²

Кухня – 1

Гостиная – 1

Спальня – 4

С/узел — 2

Терраса – 1

Гараж – 1

В стандартную комплектацию входит:

-переливной септик на 6м3.

-все инженерные коммуникации включая теплый пол

-идеально ровный пол (п/сухая стяжка)

-идеально ровные стены (гипсокартон),

-фасад и кровля КЛИК ФАЛЬЦ + планкен (скрытый крепеж)

-5-ти камерные окна VЕКА с хорошей фурнитурой и мультифункциональным покрытием.

Ждем ваши заявки! С удовольствием воплотим вашу мечту в жизнь!

Выбор местоположения

Задать вопрос / написать нам

E-mail: domgis@mail.ru

Мы свяжемся с Вами в течение дня.

Тех. поддержка
Предмет обращения:
Тукущая страница

Мы свяжемся с Вами в течение дня.

Обратный звонок
Обратный звонок
Выберите ваш город
Пожаловаться

Объявление опубликовано.
Изменения сохранены

Период публикации - бессрочный, при условии подтверждения актуальности каждые 50 дней. Уведомления будут отправляться на Вашу электронную почту.

Выберите причину снятия с публикации

Снятые с публикации объявления не участвуют в поиске и недоступны для подробного просмотра.

Для повторной публикации нажмите «Вернуть в публикацию»