КЛАЙН №864

Цена строительства от 5 000 000 ₽* * Стоимость не является окончательной
Заявка на консультацию
  • Общая площадь 57 м2
  • Длина 9.8 м
  • Ширина 7.2 м
  • Материал стен Газобетон/пеноблок
  • Количество этажей 1
  • Подвал Нет
  • Мансарда без мансарды
  • Гараж Нет
  • Терраса Нет
  • Проживание Круглогодичное
  • Количество комнат 3
  • Количество спален 2
  • Количество санузлов 1
  • Вид проекта дом
  • Застройщик Симпл хаус
  • Отделка фасада Штукатурка
  • Крыша Двускатная
  • Можно купить домокомплект Нет
  • Модульный тип строения Нет
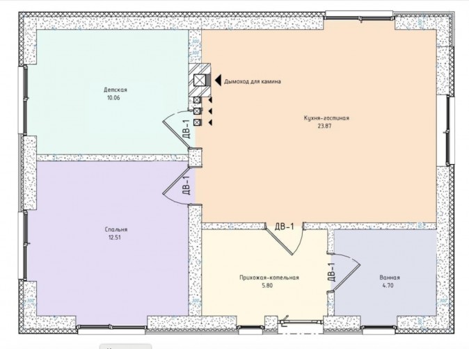
Планировки
Описание проекта

Лаконичный дом для небольшой семьи. Двускатная крыша, отделка фасадов декоративной штукатуркой, дополнительная декоративность деревянных вставок придают дому эстетичный вид. Панорамные окна комнат обеспечивают естественное освещение и особую атмосферу в доме. Несмотря на компактные размеры планировка дома предусматривает просторную кухню-гостиную с выходом во внутренний двор, две спальни и санузел. Этот проект может быть использован как небольшой дом для круглогодичного проживания и как загородный дом выходного дня.

Фасад - декоративная штукатурка

Комплектация STANDART - 5 000 000 р.

Комплектация WHITE BOX - 5 950 000 р.

Фасад - облицовочный кирпич

Комплектация STANDART - 5 450 000 р.

Комплектация WHITE BOX - 6 400 000 р.

Вас может заинтересовать
Вас может заинтересовать

Выбор местоположения

Задать вопрос / написать нам

E-mail: domgis@mail.ru

Мы свяжемся с Вами в течение дня.

Тех. поддержка
Предмет обращения:
Тукущая страница

Мы свяжемся с Вами в течение дня.

Уведомление
Предмет обращения:
Тукущая страница
Обратный звонок
Обратный звонок
Выберите ваш город
Пожаловаться

Объявление опубликовано.
Изменения сохранены

Период публикации - бессрочный, при условии подтверждения актуальности каждые 50 дней. Уведомления будут отправляться на Вашу электронную почту.

Выберите причину снятия с публикации

Снятые с публикации объявления не участвуют в поиске и недоступны для подробного просмотра.

Для повторной публикации нажмите «Вернуть в публикацию»