Одноэтажный дом — это уютное пространство для жизни в гармонии с природой. Его компактная планировка и тёплые деревянные стены создают атмосферу спокойствия и тепла, идеальную для семьи и отдыха.
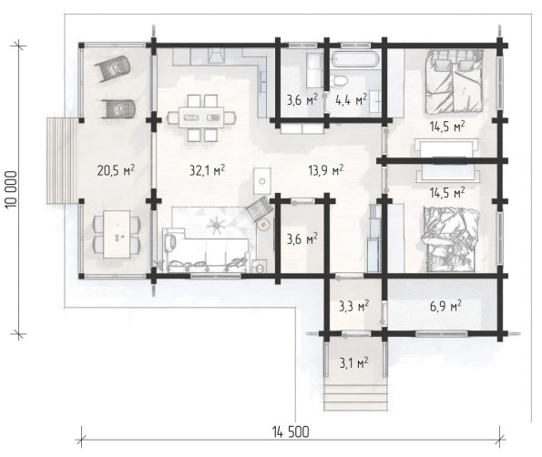
Дом отлично подойдёт как дача или постоянное жильё для небольшой семьи. Просторная гостиная с кухней и столовой объединяет зоны отдыха и общения, а большая терраса становится продолжением дома — местом для завтраков на свежем воздухе и вечерних бесед.
Спальни светлые и уютные, с окнами, выходящими в сад. Натуральные материалы, большие окна и близость к природе делают каждый день особенным. Здесь легко дышится, здесь не слышно городской суеты.
Дом прост в строительстве и эксплуатации, но при этом — функциональный и тёплый. Он подходит для тех, кто ценит близость к природе.
Это не просто жильё — это место, где собирается семья, где отдыхают душой и телом.
Тепло, природа, уют — всё, что нужно для настоящей жизни.
Выбор местоположения
Мы свяжемся с Вами в течение дня.