ДМ-4 №426

Цена строительства от 1 390 000 ₽* * Стоимость не является окончательной
Заявка на консультацию
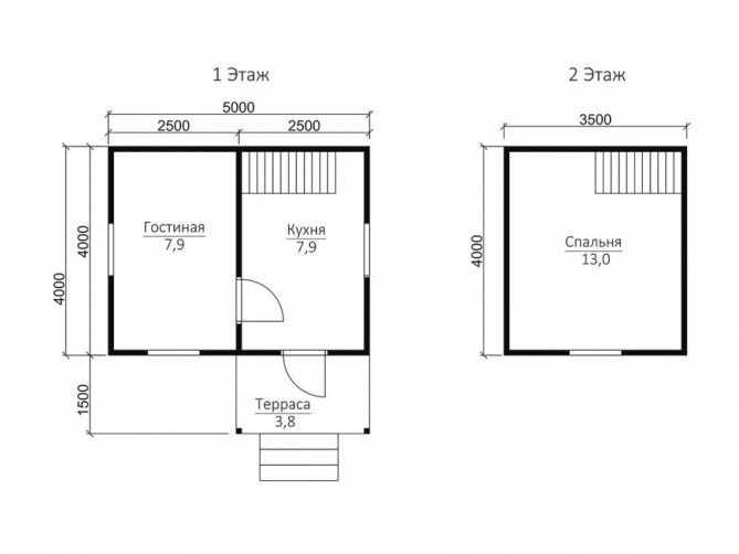
  • Общая площадь 30 м2
  • Длина 5 м
  • Ширина 4 м
  • Материал стен Профилированный брус
  • Количество этажей 1
  • Подвал Нет
  • Мансарда Имеется
  • Гараж Нет
  • Терраса Нет
  • Проживание Круглогодичное
  • Количество комнат 2
  • Количество спален 1
  • Вид проекта дом
  • Застройщик МАЛОЭТАЖНЫЕ ДОМА
  • Архитектурный стиль Классический
  • Крыша Двускатная
  • Можно купить домокомплект Да
  • Модульный тип строения Нет
Планировки
Описание проекта

Проект полутораэтажного дома из бруса с мансардой в компании малоэтажные дома, общая площадь которого составляет 30.5 кв.м., – это эксплуатационный практичный и надежный проект дома из бруса, функциональность и изысканный дизайн.

Проект дома из бруса дм4 отличается удобной экспликацией помещений: удобная кухня,удобная просторная светлая гостиная и комфортная спальня. Во всех жилых комнатах домов из бруса проектом предусмотрены зимние теплые двойные окна и деревянные двери. На входе в дом стоит надежная металлическая дверь.

Законченный вид дому из бруса придает красивая мансарда, надежно защищающая строение от снега и непогоды.

Экологическая чистота деревянного дома из бруса пиломатериала и свойство натурального дерева «дышать» - преимущества, обусловившие популярность домов из бруса. Двойные оконные рамы домов из бруса, монолитная структура бруса и дополнительный слой теплоизоляции сберегают тепло и формируют комфортные условия для круглогодичной эксплуатации и проживания в городе Новосибирске!

Вас может заинтересовать
Вас может заинтересовать

Выбор местоположения

Задать вопрос / написать нам

E-mail: domgis@mail.ru

Мы свяжемся с Вами в течение дня.

Тех. поддержка
Предмет обращения:
Тукущая страница

Мы свяжемся с Вами в течение дня.

Уведомление
Предмет обращения:
Тукущая страница
Обратный звонок
Обратный звонок
Выберите ваш город
Пожаловаться

Объявление опубликовано.
Изменения сохранены

Период публикации - бессрочный, при условии подтверждения актуальности каждые 50 дней. Уведомления будут отправляться на Вашу электронную почту.

Выберите причину снятия с публикации

Снятые с публикации объявления не участвуют в поиске и недоступны для подробного просмотра.

Для повторной публикации нажмите «Вернуть в публикацию»