Проект 60-23 №695

Цена строительства от 6 800 000 ₽* * Стоимость не является окончательной
Заявка на консультацию
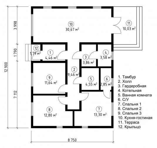
  • Общая площадь 102 м2
  • Длина 8.75 м
  • Ширина 12.9 м
  • Материал стен Каркасно-панельные
  • Количество этажей 1
  • Подвал Нет
  • Мансарда без мансарды
  • Гараж Нет
  • Терраса Да
  • Проживание Круглогодичное
  • Количество комнат 4
  • Количество спален 3
  • Количество санузлов 2
  • Вид проекта дом
  • Застройщик Авантаж
  • Отделка фасада Комбинированная
  • Крыша Двускатная
  • Можно купить домокомплект Да
  • Модульный тип строения Нет
Планировки
Описание проекта


Вас может заинтересовать
Вас может заинтересовать

Выбор местоположения

Задать вопрос / написать нам

E-mail: domgis@mail.ru

Мы свяжемся с Вами в течение дня.

Тех. поддержка
Предмет обращения:
Тукущая страница

Мы свяжемся с Вами в течение дня.

Уведомление
Предмет обращения:
Тукущая страница
Обратный звонок
Обратный звонок
Выберите ваш город
Пожаловаться

Объявление опубликовано.
Изменения сохранены

Период публикации - бессрочный, при условии подтверждения актуальности каждые 50 дней. Уведомления будут отправляться на Вашу электронную почту.

Выберите причину снятия с публикации

Снятые с публикации объявления не участвуют в поиске и недоступны для подробного просмотра.

Для повторной публикации нажмите «Вернуть в публикацию»